B 130.5
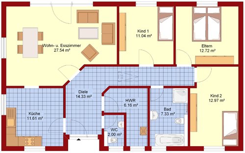
Zentrum des Hauses sind der großzügige Wohn- und Essbereich und die Ess-Küche. WC und Hauswirtschaftsraum liegen direkt gegenüber und sind somit in Reichweite. Zur anderen Seite hin befinden sich zwei Kinderzimmer, ein Elternschlafzimmer und das Badezimmer. Damit hat das Haus alles, damit sich eine vierköpfige Familie wohlfühlt.
Kompakt und harmonisch wirkt dieser Bungalow, der sich im Terrassenbereich durch die bodentiefen Fensterelemente sehr hell und offen gibt. Somit kann man die Terrasse sich auch über die ganze Hausbreite erstrecken lassen, da ein Kinder- und das Elternschlafzimmer Zugang zum Garten haben.


Erdgeschoss :