Modern Living
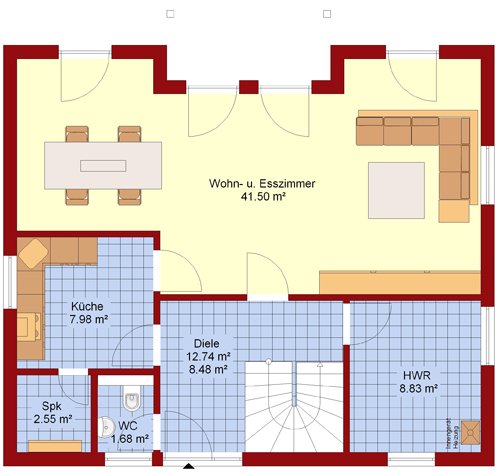
Das Erdgeschoss umfasst den offenen Wohn- und Essbereich, die vier großen Terrassentüren sorgen für viel Helligkeit. Die Küche ist praktischerweise von zwei Seiten her zugänglich und hat direkten Zugang zur Speisekammer. Von der Diele aus lassen sich noch der Hauswirtschaftsraum und das Gäste-WC erreichen.


Erdgeschoss :




























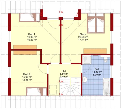
Das ebenfalls großzügig gestaltete Dachgeschoss gibt viel Raum und Platz für drei große Zimmer und ein sehr geräumiges Bad. Das Elternschlafzimmer und ein Kinderzimmer verfügen über einen direkten Zugang zum überdachten Balkon.



Dachgeschoss: