DIG 118
DIG 118,
bietet nicht nur genügend Platz für Familien mit bis zu 2 Kindern, sondern es gibt auch Hobbyköchen die Möglichkeit, sich zu entfalten. In der geräumigen Küche lassen sich allerlei Leckereien zaubern, mit denen man die ganze Familie verwöhnen kann.

Erdgeschoss :
























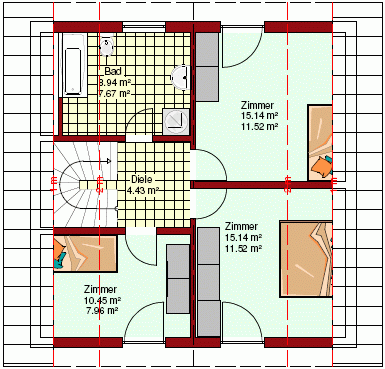
Dachgeschoss: