DIG 118 Plus
DIG 118 Plus,
ein Haus mit einem Platz an der Sonne. Der Wintergarten lässt Sie das ganze Jahr über die Sonnenstrahlen genießen und sorgt so für Ihr Wohlbefinden. Auf diese Art können Sie den Alltag von sich abfallen lassen und sich richtig entspannen.

Erdgeschoss :





















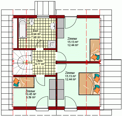
Dachgeschoss: