Classic 120 G
Easyway Classic,
das Grundmodell unserer EasyWay Haus-Serie.

Bei gleichbleibendem Dachgeschoss wählen Sie zwischen zwei Eingangsvarianten, damit Haus, Grundstück und Ihre Wohnansprüche bestens harmonieren.
Sie haben die Wahl!



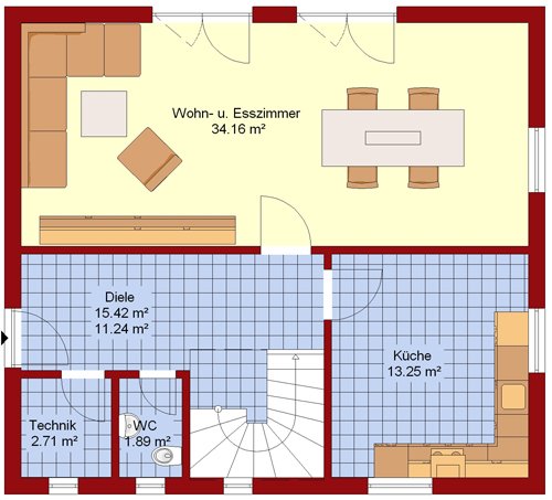
Erdgeschoss :































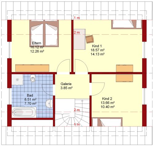
Dachgeschoss: