Unsere Häuser
Bildergalerie
Musterhäuser
Hausreihe Europa
Hausreihe Easyway
. Classic 120 G
. Classic 120 T
. Classic 121 G
. Classic 121 T
. Classic 123 G
. Classic 123 T
. Comfort 92
. Comfort 160
. Comfort 161
. City 116
. City 162
. City 164
Hausreihe Opal
Hausreihe Saphir
Hausreihe Brillant
Service und Beratung
Bauweise
Lieferformen
Gesundes Wohnen
Barrierefreies Wohnen
Sonderangebote
Grundstücksservice
Klimaschutz
Finanzservice
Gebrauchtimmobilien
Unser Unternehmen
Firmengeschichte
Job-Börse
Impressum
Kontakt
Startseite
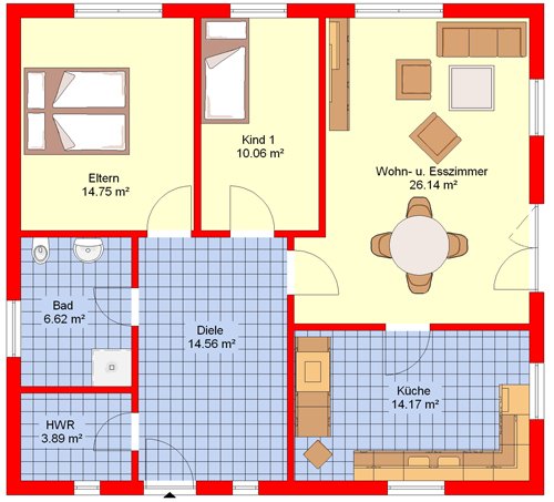
Comfort 92
Easyway
Comfort 92
,
das ist die bequeme Lösung auf einer Wohnebene.
Die kompakte Bungalow-Architektur bietet unbeschwerte Lebensqualität ohne Treppensteigen. Komfort mit Weitblick für jedes Lebensalter.
Erdgeschoss :