Comfort 160
Easyway Comfort 160,
dieses Haus ist die größte Variante der EasyWay Haus-Serie.

Mit der ins Dachgeschoss integrierten, kompletten Wohnung ist viel Platz geschaffen für zwei Familien oder drei Generationen unter einem geräumigen Dach. Ausreichend Raum für ganz individuelle Wohnkonzepte und trotzdem sicher finanzierbar mit dem durchdachten EasyWay-System.


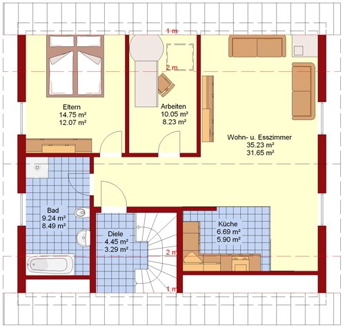
Erdgeschoss :
































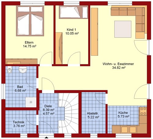
Dachgeschoss: