Classic 120 T
Easyway Classic,
das Grundmodell unserer EasyWay Haus-Serie.

Bei gleichbleibendem Dachgeschoss wählen Sie zwischen zwei Eingangsvarianten, damit Haus, Grundstück und Ihre Wohnansprüche bestens harmonieren.
Sie haben die Wahl!



Erdgeschoss :































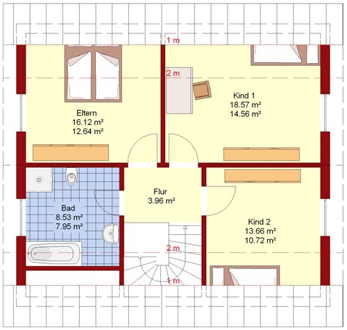
Dachgeschoss: